目前,1200型和1450型六辊可逆轧机的中间辊横移油缸位置检测装置都是装在中间辊横移架子的横移油缸里面的,在轧机生产过程中,由于用乳化液时常冲洗和浸泡及油缸内部漏油都会造成检测磁致伸缩位移传感器电路板进水或进油经常烧坏,由于此磁致伸缩传感器是向上装在横移上面的所以经常会造成更换工作辊连接十字轴的时候或维修人员检修时及给支承辊加油和插油雾管时生产人员把磁致伸缩位移传感器出线口端的线给轧断和踩破线的绝缘皮造成传感器短路损坏,由于磁致伸缩位移传感器是用来检测横移油缸伸缩位置从而自动进行对横移油缸伸缩的调节即当在一个横移架子上的两个油缸的位移传感器损坏一个,则会造成两个油缸不同步,从而会把横移架子的连接板也损坏,所以经常造成机组停车,更换安装传感器十分的困难,耗时,维修费力,造成生产成本高,降低了设备的开动率和轧机生产效能。
发明内容
解决的问题在于,克服现有技术的不足,提供了一种六辊可逆轧机中间辊横移机构位移传感器。该传感器不仅设计合理,使用可靠,而且提高了工作效率。
本实用新型的有益效果是,结构合理,使用可靠,避免了乳化液时常冲洗和浸泡及油缸漏油造成的传感器烧坏和生产人员更换十字轴或给支承辊加油和插油雾管轴时,检修人员检修时,损坏传感器,从而也避免了横移架子连接板的损坏及频繁更换横移油缸内的位移传感器,从而减少了设备的故障率及停机时间,降低了维修成本,提高了生产的效能。
附图说明
下面结合附图和实施例对本实用新型进一步说明。
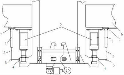
图I为本实用新型的结构示意图。

附图编号为:1、直线位移传感器,2、拉杆,3、固定支架,4、固定横座,5、横移油缸,6、轧机,7、固定架底座。
具体实施方式
參照图1,六辊可逆轧机中间辊横移机构位移传感器由固定架底座7下连接安装直线位移传感器1,连接拉杆2,拉杆2连接固定支架3,固定支架3连接固定横座4而构成。使用吋,将本实用新型连接于轧机6的横移油缸5旁,即可使用。
本实用新型的采用,只需在现场用万用表直接測量就可以,维修安装,更换方便、简单,设备维修成本低,減少了设备维修时间,运行稳定,降低了生产成本,提高了设备的开动率。